Mieszkanie na wynajem - Gdynia Obłuże, ul. Unruga
ZGODA NA ZWIERZĘTA!
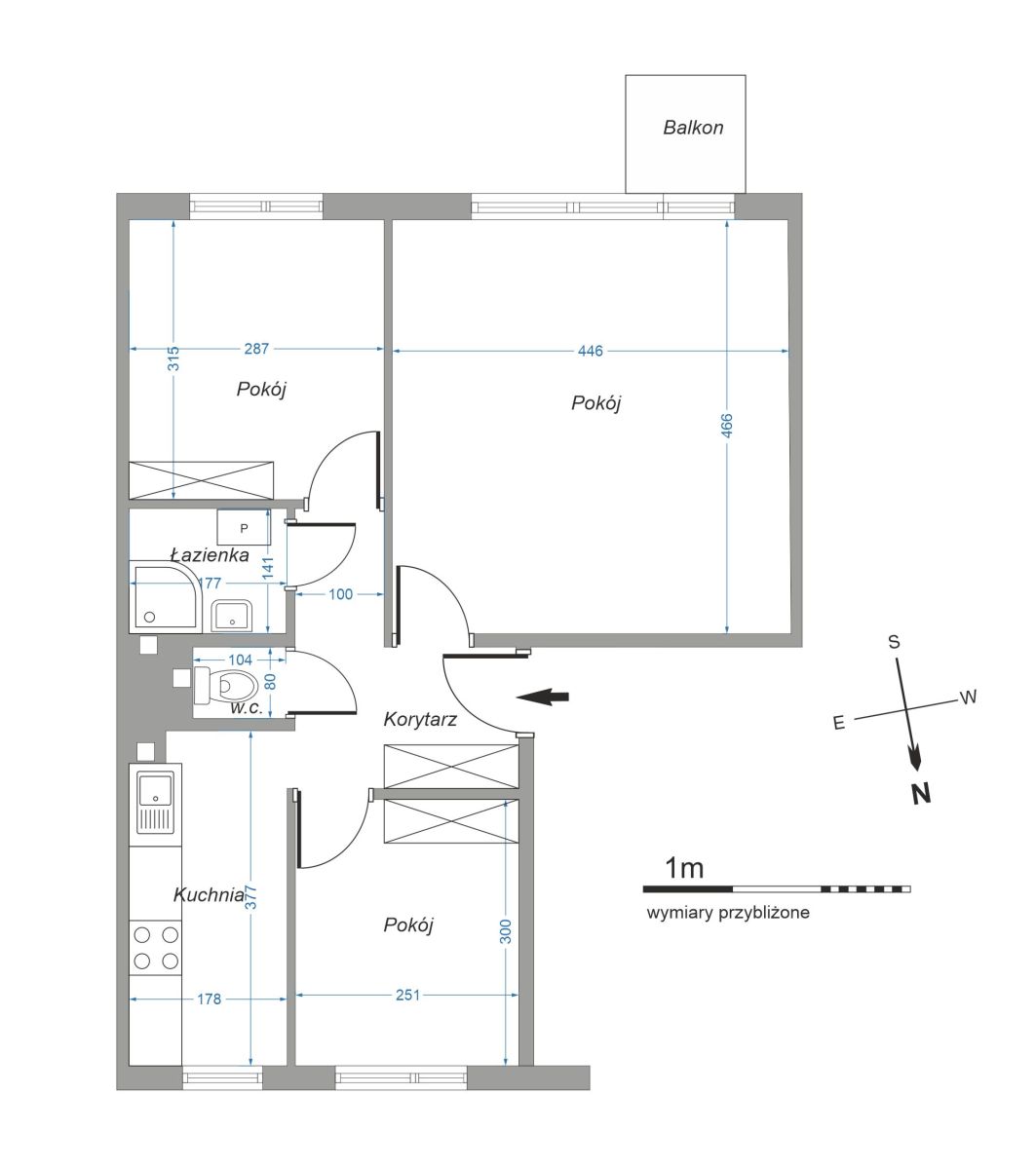
Powierzchnia: 53 m²
Piętro: 1
Budynek: 4-piętrowy blok z 1979 r.
Układ: mieszkanie dwustronne
Oferuję na wynajem funkcjonalne, w pełni umeblowane i odnowione mieszkanie w bardzo dobrym stanie technicznym. Lokal składa się z:
Kuchni i sypialni po stronie północnej
Pokoju dziennego z wyjściem na balkon oraz drugiej sypialni po stronie południowej
Łazienki z prysznicem
Oddzielnego WC
Przedpokoju
Wyposażenie:
Kuchnia: meble na wymiar, zabudowa AGD
Przedpokój i sypialnia: szafy na wymiar
Druga sypialnia: łóżko 140×200, szafa, komoda
Pokój dzienny: komplet mebli, rozkładany stół z krzesłami, wygodna kanapa narożna, telewizor
Dodatkowe atuty:
Balkon od strony południowej
Spokojna okolica
Przed budynkiem znajdują się ogólnodostępne miejsca parkingowe
Możliwość zawarcia umowy z dowolnym dostawcą internetu i telewizji
Obowiązkowe ubezpieczenie OC w życiu prywatnym z rozszerzeniem na szkody w przedmiocie najmu
Koszty:
Czynsz najmu: 2 500 zł
Opłaty eksploatacyjne: ok. 900 zł w sezonie grzewczym, ok. 500 zł w sezonie letnim
Dodatkowe opłaty: woda ciepła i zimna oraz energia elektryczna wg wskazań liczników
Lokalizacja:
Mieszkanie znajduje się w bardzo dobrze skomunikowanej części Gdyni Obłuża. Wokół pełna infrastruktura handlowo-usługowa: sklepy, punkty usługowe, przedszkola, szkoły, ośrodki zdrowia. Bardzo dobra komunikacja autobusowa (linie PaSY) zapewnia wygodny dojazd do centrum i pozostałych dzielnic.
Warunki wynajmu:
Wynajem wyłącznie długoterminowy
Kaucja: 5 000 zł
Obowiązkowe ubezpieczenie OC w życiu prywatnym z rozszerzeniem na przedmiot najmu (ok. 200 zł/rok)
Ogłoszenie ma charakter wyłącznie informacyjny i nie stanowi oferty w rozumieniu art. 66 i następnych Kodeksu cywilnego ani informacji handlowej w rozumieniu przepisów prawa. Wszelkie dane i ceny podane w ogłoszeniu mają charakter orientacyjny i mogą ulec zmianie.
Zapraszam do kontaktu i umówienia prezentacji!
2 500,00 PLN (47,17 PLN)
3 POKOJE NA WYNAJEM - GDYNIA UL. UNRUGA
Mieszkanie na wynajem,
Gdynia, adm. J. Unruga
Dane szczegółowe
- Typ transakcji: wynajem
- Typ nieruchomości: Mieszkanie
- Lokalizacja: Gdynia Obłuże, adm. J. Unruga
- Powierzchnia:53 m2
- Liczba pokoi: 3
- Rok budowy: 1979
- Piętro: 1 z 4
- Numer oferty: 3M133304
- Cena: 2 500,00 PLN
- Cena za m2: 47,17 PLN
Kontakt z agentem: KASZUBSKIE CENTRUM NIERUCHOMOŚCI
Ola Chuchała
Opis nieruchomości
Mapa
Kontakt z agentem
KASZUBSKIE CENTRUM NIERUCHOMOŚCI