Na sprzedaż: 3‑pokojowe mieszkanie w Gdyni Cisowej, ul. Chylońska 299
Cisowa to jedna z najbardziej praktycznych i wygodnych dzielnic Gdyni, położona na północno‑zachodnim krańcu miasta. Słynie z bardzo dobrej komunikacji — znajduje się tu stacja SKM Gdynia Cisowa, liczne linie autobusowe i trolejbusowe, a dojazd do obwodnicy Trójmiasta zajmuje zaledwie kilka minut. To idealna lokalizacja dla osób, które chcą sprawnie przemieszczać się po całej aglomeracji.
Dzielnica ma zróżnicowaną zabudowę — dominują tu bloki z lat 70. i 80., otoczone zielenią oraz spokojnymi uliczkami. W pobliżu znajdują się sklepy, markety, punkty usługowe, szkoły i przedszkola, co czyni Cisową bardzo wygodnym miejscem do codziennego życia. Dużym atutem jest także bliskość terenów rekreacyjnych, lasów oraz ścieżek spacerowych w kierunku Chyloni i Pustek Cisowskich.
Cisowa to dzielnica o przyjaznym, sąsiedzkim charakterze, która łączy miejski komfort z dostępem do natury. Świetnie sprawdza się zarówno dla rodzin, jak i osób szukających mieszkania pod wynajem.
Przestronne i jasne mieszkanie o świetnym układzie, położone w doskonałej lokalizacji. Idealne dla singla, pary, rodziny, a także jako pewna inwestycja pod wynajem.
Lokalizacja
- ul. Chylońska 299, Gdynia Cisowa
- 1. piętro w 4‑piętrowym budynku z 1981 roku
- Bardzo dobra komunikacja — szybki dostęp do SKM, autobusów i głównych arterii miasta
- Do obwodnicy Trójmiasta jedynie 1,6 km
- W pobliżu pełne zaplecze handlowo‑usługowe
- Parking dla mieszkańców pod budynkiem
Informacje o mieszkaniu
- Powierzchnia użytkowa z funkcjonalnym układem pomieszczeń
- Spółdzielcze własnościowe prawo do lokalu
- Mieszkanie dwustronne: jedna sypialnia od północy; pokój dzienny i druga sypialnia od południa — dużo naturalnego światła
- Balkon oraz piwnica 3,36 m²
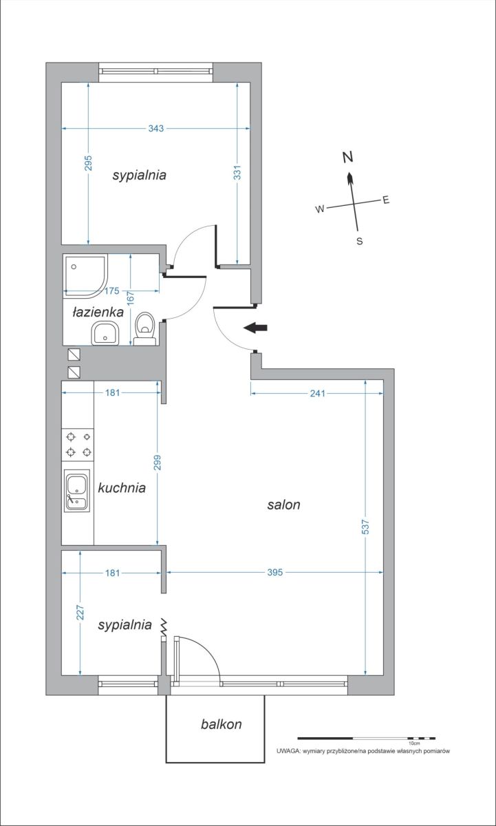
Rozkład pomieszczeń
- Pokój dzienny: ok. 21 m²
- Sypialnia: ok. 10 m²
- Mała sypialnia: ok. 4 m²
- Aneks kuchenny: 5,4 m²
- Łazienka z WC: 3 m²
Standard wykończenia
- Ściany gładkie, malowane
- Podłogi: panele oraz kafle
- Łazienka w kaflach, wyposażona w kabinę prysznicową
Opłaty:
zima:1000pln
lato:600pln
energia i gaz
Dlaczego warto:
- Świetna lokalizacja i komunikacja
- Funkcjonalny układ pomieszczeń
- Jasne, ciepłe, dwustronne mieszkanie
- Idealne zarówno do zamieszkania, jak i pod wynajem
- Budynek z dobrą infrastrukturą i spokojnym otoczeniem
485 000,00 PLN (10 078,97 PLN)
Doskonała lokalizacja w Gdyni Cisowej, 3 pokoje.
Mieszkanie na sprzedaż,
Gdynia, Chylońska
Dane szczegółowe
- Typ transakcji: sprzedaż
- Typ nieruchomości: Mieszkanie
- Lokalizacja: Gdynia Cisowa, Chylońska
- Powierzchnia:48,12 m2
- Liczba pokoi: 3
- Rok budowy: 1981
- Piętro: 1 z 4
- Numer oferty: 3M727169
- Cena: 485 000,00 PLN
- Cena za m2: 10 078,97 PLN
Kontakt z agentem: KASZUBSKIE CENTRUM NIERUCHOMOŚCI
Magdalena Iwasiów
Opis nieruchomości
Mapa
Kontakt z agentem
KASZUBSKIE CENTRUM NIERUCHOMOŚCI